povela architect
PLANTA BAJA
PLANTA 1
PLANTA 2
PLANTA 3
PLANTA ÁTICO
FRENTE
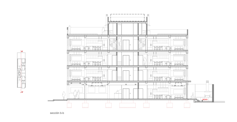
SECCIÓN 1
SECCIÓN 2
SECCIÓN 3
PROYECTO
OFICINA
VIVIENDAS
deutsch
english
ARCHITECT
PROJECTS
GP300
AV283
CONTACT